Para adentrarse en la arquitectura de Fisac, hay que desarrollar primeramente su visión particular de la arquitectura, sus inquietudes y sus preguntas de evolución proyectual. Para este gran arquitecto, la arquitectura podría llegar a definirse como un trozo de aire humanizado incluyendo en su interior tanto las necesidades básicas como la belleza de la arquitectura. En cada uno de ellos recorre un itinerario proyectual: PARA QUÉ, DÓNDE, CÓMO y UN NO SÉ QUÉ. Estas son las premisas con las que el arquitecto diseñaba los proyectos.
En un principio se realiza la pregunta de PARA QUÉ realizando un análisis directo
con los espacios que el programa o el proyecto necesita que se lleven a cabo.
Una vez realizado este análisis previo cabe la posibilidad de materializarlo
gráficamente.
En segundo lugar, establecemos la relación con respecto al
lugar donde el proyecto se va a realizar. Es decir, el DÓNDE en la cual se analizarán las circunstancias del lugar: urbano
o rústico, los edificios u otros elementos naturales, históricos, artísticos o
de cualquier otra clase que han de formar parte de su entorno y en general todo
lo relacionado con el emplazamiento.
El siguiente aspecto que trata es el CÓMO se puede realizar materialmente el edifico. En este momento se
plantea las soluciones arquitectónicas constructivas que tiene que utilizar
para llevar ese espacio a realizarlo material, el espacio humanizado del que se
hablaba anteriormente. No cabe el planteamiento de esta cuestión con
anterioridad ya que el conocimiento del programa y de la situación del proyecto
nos lleva a una utilización de materiales que guardan relación con los aspectos
anteriores. Para el arquitecto la solución número catorce es mejor que la
trece.
Por último, está la posibilidad de poder agregarle al proyecto un cierto toque poético: UN NO SE QUÉ que haga a aquello que una construcción técnicamente correcta, aspire a llegar a ser una obra de Arte.
ARQUITECTURA RELIGIOSA
La arquitectura religiosa es uno de los campos más conocidos de Fisac. Por antonomasia, proyectar un templo parece que está enfocado a otra época, no al siglo XX. Sin embargo Fisac dio un giro buscando intencionadamente un espacio que signifique para el creyente algo diferente. El hecho es que en un templo hay que tratar de que surja un espacio místico, religioso, que invite a reflexionar, un reflejo de una determinada actitud, que colabore al culto especialmente sobre la disposición de ánimo de los fieles… que haga mantener un contacto directo (o lo más directo posible) con lo sobrenatural. Fisac la define como un “espacio humanizado sagrado”.
Por ello Fisac se embarca en la rotura de todos los cánones respectivos hasta ahora en este campo de la arquitectura, buscando otros aspectos funcionales al espacio religioso, hasta llegar a reflejar y representar unas directrices religiosas y litúrgicas determinadas. En una iglesia cotidiana se dispone de una serie de partes dentro de la misma, de las cuales la que había que reflejar de una forma más mística sería el presbiterio, como lugar de mayor rango. Esta referencia debe realzarse en todos los aspectos: planta, alzados y sección. En un principio utiliza un eje longitudinal de simetría generalmente adoptando una forma axial. Sin embargo a lo largo de su evolución adoptan formas circulares y elípticas aportando mayor significado interior en alguno de los casos y generando el muro dinámico, en el que nos adentraremos más adelante.
Con esto consiguió que el espacio interior adquiriera un
significado muy elevado en relación con los aspectos religiosos pero en
detrimento del valor exterior de la misma. De hecho las envolturas
estructurales de aquellos espacios, tampoco respondían a la elaboración que
ofrecían los interiores. La justificación a este hecho del autor se basaba en
un desinterés consciente por la investigación de estructuras especiales, ya que
estos edificios no lo requerían.
- Evolución del muro hacia la creación del ESPACIO DINÁMICO
El conjunto de la arquitectura religiosa de los años 50 se
caracteriza por la búsqueda de un nuevo espacio, basado en la convergencia y
que se obtendrá de diferentes formas. Nos podemos encontrar varias soluciones
entre las que destacamos la “convergencia simple” que se desarrolla a partir de
dos muros, que tienden a unirse en el punto básico, el altar y que se irá
reforzando con otros elementos complementarios. Este primer ensayo corresponde
a la iglesia del colegio apostólico PP Dominicos en Valladolid.
Colegio apostólico PP Dominicos (Valladolid)
Un valor añadido
a destacar al dinamismo que se atribuye al templo, es la de girar los muros en
planta cerrándose hacia el altar, de tal forma que te hace observar el mismo
con mayor atención reteniendo la mirada. Y visualmente, el altar parece mucho
más lejos de lo que está, ya que la convergencia no se percibe en el interior,
pareciendo ambas paredes paralelas, logrando una sensación de lejanía
ensalzando el valor al punto más importante de la iglesia.
El ábside
se distingue de la nave por la altura y la amplitud espacial, siendo un
condicionante también la cantidad de luz y color. Las entradas de luz se
realizan por medio de dos vidrieras laterales, con cristales traslúcidos y no
visibles, colocados las terminaciones del muro dinámico estando directamente
enfocadas hacia el altar. Este, estando construido por piedra blanca labrada a
mano, hace que todo el ábside tenga una función de gran foco, un resplandor. Y
no por ello deja de hacer uso de elementos más decorativos como son las dos
vidrieras cenitales con imágenes sagradas aportando color (usa colores fríos
tamizando una suave iluminación), situadas en los tramos de elevación del
techo, y una misticidad apropiada para un lugar sagrado. A consecuencia de todo
esto, se logra un contraste fuerte entre el cromatismo cálido y la intensidad
del ábside.
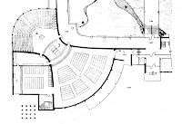
Fisac diseñó una segunda solución en la que aparece la duplicidad del sistema de convergencia, que consiste en una duplicidad del altar y dos esquemas convergentes, que fluyen hacia un mismo punto. En este caso nos encontramos la iglesia de Alcobendas en Madrid.
Teologado de los PP Dominicos de Alcobendas, Madrid
En este
caso concreto, la iglesia no tiene una posición central, una vez desaparecida
la rigidez geométrica, y el conjunto se basa en una composición abierta, donde
la iglesia recibe el mayor contenido, situada en la zona anterior izquierda que
hace presente el carácter religioso del complejo.
La iglesia
guarda con las anteriores la semejanza de representar nuevamente la
preocupación por un espacio dinámico y una concreción en la convergencia. La
duplicación real del sistema, que se lleva a cabo, resulta según el arquitecto,
la doble función y destino para dos comunidades distintas (monástica y
parroquial), con unas dedicaciones específicas de coro y de culto público. Este
doble programa, le lleva a deducir un esquema formal determinado por una planta
hiperbólica y unos elementos como son los muros, el suelo elevado, el techo en
ascensión, las fugas cromáticas de las vidrieras horizontales… que proporcionan
un espacio en movimiento de sorprendente armonía.
La doble dirección de avance y elevación permiten una fluidez espiral y un ritmo mucho más vertiginoso que cualquier otra solución de las ya ensayadas años atrás. Un espacio sumamente trascendido, haciendo alusión constante a su faceta religiosa que no encuentra correspondencia en el exterior, macizo y pesado. Fisac considera esta iglesia como un monumento típico en su evolución caracterizado por la despreocupación estructural. Se puede considerar el final de una indagación que estaba descubriendo simultáneamente en las iglesias de muro dinámico. De hecho el predominio del intimismo y subjetivismo contrasta con la mayor fuerza expresiva que manifiestan obras contemporáneas.
Uno de los elementos que estaba llamado a tener gran importancia era el gran vitral que sustituía casi por completo al muro testero, que como el resto de vidrieras, tenía un papel dentro del conjunto total de la iglesia. Los resultados no satisficieron al arquitecto que se refería negativamente a ellos.
Otro elemento a resaltar es obviamente las entradas de luz que se realizan en esta obra. Según dice Fisac “… una vez decidida la forma de la iglesia, empecé a jugar con el color. Quería un espacio vertical de luz blanca sobre el altar, un ámbito cálido sobre el coro, porque iba dedicado a San Pedro Mártir y a los misioneros, o sea, un poco a la sangre y otro más frío a donde estaban los fieles…”
La convergencia asimétrica la ensayó a partir de 1953 en la
serie más numerosa de proyectos. Como obra cúlmine de este ensayo será la
iglesia de la Coronación de Vitoria donde se diferencian drásticamente el muro
estático y el dinámico, tanto en forma, luz y materialidad.
Iglesia de la Coronación de Vitoria
Esta
iglesia construida en 1960 es considerada como pieza fundamental del conjunto
de iglesias de espacio dinámico. Nuevamente estamos hablando de un hito de la
arquitectura religiosa española en unos momentos de mayor floración y en la que
esta obra de Fisac no era ya un hecho aislado, sino una de las ocho parroquias
de nueva creación.
Un primer anteproyecto, enlazaba con la disposición de las plantas anteriores a 1960, sin el muro totalmente curvo a los pies de la iglesia. El que se llevaría a la realidad, data de 1958 y representaba grandes avances tipológicos en aspectos sumamente importantes: la iluminación cambia desapareciendo la vidriera continua, sustituida por pequeñas aperturas rítmicas que perforan el muro estático; la situación del baptisterio; y sobre todo el muro envolvente que cumple todos los requisitos de dinamismo y continuidad. Según palabras de Fisac se puede describir la iglesia como “… un muro de apariencia dinámica, liso, blanco, sin ningún punto de referencia al que la vista pueda agarrarse, obligándose a estar a discurrir tangencialmente hacia el fondo del ábside. El interior de ella se proyecta, con la idea de crear un recinto, que tenga desde todos los puntos una fuerte tensión dinámica hacia el altar…”
Queda una planta funcionalmente asimétrica, en la que el eje no pasa por el altar, y la entrada esta desplazada hacia el muro estático. Como elementos constantes persisten la elevación del suelo y techo y la iluminación del ábside lateral por vidriera asimétrica.
El grupo de iglesias que contiene el muro dinámico es un
conjunto de siete iglesias entre proyectos y obras realizadas, así como dos
versiones del proyecto de la iglesia de la Coronación de Vitoria. Como elemento
unificador de todas aparece el muro dinámico con las consecuencias
arquitectónicas que determina (una asimetría tanto en planta como en alzado).
La asimetría que parecía contradecir al dinamismo es también una forma de
activar el movimiento del espacio interno, como veremos a través de esta serie.
En las anteriores a 1957, se sigue una mayor continuidad formal
de las distintas plantas, con las del grupo de convergente simple, por la
persistencia de los muros que tendían a encontrarse, sin más diferencia que la
continuidad de unos de ellos, que se prolongaba por detrás del presbiterio y
enlazaba con el ábside. Las pensadas en 1958, presentan una mayor complejidad y
madurez, al desarrollarse e independizarse por completo el muro como envolvente
y continuo, transformando en una serie de segmentos curvos enlazados, que
rodean por tres lados a la superficie de la iglesia.
La primera de estas obras en la que se observa la
prolongación de uno de los muros convergentes, es la Capilla para el instituto
de Ejido. En ella el muro izquierdo conserva su disposición convergente, el
derecho se prolonga sin solución de continuidad, envolviendo por detrás al
altar. La consecuencia de esta solución es que una de las entradas de luz por
el ábside se anulaba. De esto se deduce una alteración del valor de los muros,
que dejan de ser equivalentes. Uno de ellos adquiere el contenido estático cuya
función es de servir de referencia y detener e interrumpir el deslizamiento del
espacio. Este muro estático es el que recibe todos los obstáculos posibles para
realizar su función de no movilidad. El otro muro recibe la función de dirigir
la mirada del espectador, de forma continua e ininterrumpida.
En alzado se completa con el muro dinámico, que además de
ser visualmente continuo, recibe una iluminación directa y tiene una cualidad
superficial lisa, pulida y blanca. Estos elementos refuerzan aún más la
tendencia a la transformación en movimiento acelerado. Se trata de marcar un
cierto contraste entre las cualidades de los ambos muros (estático y dinámico),
sus texturas, color…
En el anteproyecto de la Iglesia de San Froilán de Viena,
se diferenciaban ya claramente los dos muros: el estático y el dinámico. Hay
que fijarse en una mayor inclinación de este último que responde a una
propuesta de mayor aceleración. La asimetría se refuerza por la apertura de
varias capillas en los laterales y una vidriera corrida que corta al muro
estático interrumpiéndose bruscamente en la cubierta. Por el contrario, el muro
dinámico sin tener ningún punto de referencia, de textura plana y luminosidad
acentuada, se continúa en un doble sentido, envolviendo el ábside hasta el
encuentro con la vidriera. Además sigue existiendo un contraste bastante
acentuado en cuanto a los materiales entre los dos muros de referencia
arquitectónica.
La iglesia de la Coronación de Vitoria es la pieza que
termina el puzzle de las obras realizadas en cuanto al espacio dinámico se
refiere. Se puede decir que lo que antes era búsqueda de una idea por parte de
Fisac, en esta iglesia está plenamente conseguido con rotundo éxito.
Esquema
de evolución del muro dinámico y estático.
- LA LUZ como elemento integrado en el espacio dinámico
Como remate para la arquitectura de Miguel Fisac en el
campo religioso cabe destacar la utilización de la luz para resaltar con mayor
carácter las ideas del espacio y muro dinámico. Realmente el arquitecto no
trata estos dos campos como dos elementos totalmente diferenciados, sino que
busca una estabilidad para lograr que un elemento sea consecuencia del
anterior. En realidad demuestra un gran dominio sobre este campo,
materializando en esas sabias articulaciones de muros rectos y curvos unas
“rajas” precisas para que penetre la luz y tense mágicamente el espacio.
En todas sus obras religiosas, la mayoría de entradas de
iluminación se realiza por el altar enfatizando el dinamismo del espacio
generado por los muros y el lugar hacia donde los fieles deben orientarse. Los
muros no disponen de muchas imágenes con el fin de que la persona enfoque su
mirada hacia el lugar más sagrado de la iglesia. Esta luz sufre una pequeña
evolución desde las primeras obras de los años 50 en arquitectura religiosa.
En los primeros proyectos las entradas de luz se podían asemejar a dos focos permanentes instalados en la parte superior de la iglesia, siendo éstas las más importantes de la obra. También acomodaba otras entradas más ocultas en los laterales, con el hecho de no destruir la continuidad del muro dinámico, aprovechando la situación de capillas laterales, confesionarios… Y por último se puede observar en algún caso la utilización de la cubierta como método de acompañar aún más al templo en su función como elemento sagrado. En estos casos elaboraba una serie de vidrieras esmaltadas de diferentes tonos como acercamiento a la arquitectura religiosa antigua tal como las catedrales bizantinas, románicas, góticas… La cubierta también formaba parte de la iluminación ya que en el interior trataba el techo con materiales que pudieran reflejar la luz que penetraba. De esta forma tan refinada genera unas tensiones creando unos ejes de deslizamiento y unos puntos que atraen las miradas de los feligreses de una manera absoluta.
En su segunda fase de su evolución en el diseño de arquitectura religiosa nos encontramos con una utilización más global entre la luz y los muros que componen las iglesias, de tal forma que empieza a ser completamente necesario observar la luz para establecer una relación entre el muro dinámico y el estático. En algunas obras lo que realiza es el apoyo de los materiales constructivos para dar más existencia a luz, añadiendo un enfoscado blanco y liso de tal forma que el foco parece que es mayor que en los ensayos anteriores. Por el contrario sigue siendo la luz la que nos dirige la mirada acompañándonos por el muro dinámico que comienza a dotarse de una forma orgánica otorgando mayor aceleración al dinamismo. El muro estático lo realiza de otro material para diferenciar en mayor medida ambos muros, siendo en él donde realiza más perforaciones por las cuales entra la luz en menor medida. De esta forma crea unos abanicos de iluminación entre ambos muros. También se observa una mayor capacidad de dotar al espacio dinámico de un cierto grado de sobrenaturalidad, que tanto buscó durante sus años de ensayos, por medio de un contraste de luz entre ámbitos del mismo espacio y la ayuda de las cristaleras con diferentes tonalidades. Las imágenes religiosas siguen siendo escasas para que la atención se centre en el arte de la construcción.
En todos estos casos, las entradas de luz cercanas al altar se ocultan de tal forma que físicamente no ves la vidriera, sino que puedes llegarla a intuir. Este elemento sirve como nexo de unión entre los dos muros generadores del espacio dinámico (el muro estático y dinámico). De esta forma también realza la envolvente del muro dinámico con respecto al estático ya que se percibe a primera vista que están quebrados, no llegan a tocarse.
FOTOGRAFÍAS (numeradas de arriba abajo y de izquierda a derecha)
01. Croquis de su famosa estructura denominada "huesos".
02. Evolución del espacio dinámico: convergencia simple, doble convergencia, y muro dinámico-estático.
02. Evolución del espacio dinámico: convergencia simple, doble convergencia, y muro dinámico-estático.
03. Sección de la Iglesia
de los Dominicos de Valladolid.
04. Vista interior de la Iglesia de los Dominicos de Valladolid. Vista del
altar con su entrada de luz.
05. Planta de la iglesia de los Dominicos de Alcobendas,
Madrid.
06. Vista interior de la iglesia de los Dominicos de
Alcobendas, Madrid. Entradas de luz.
07. Planta de la iglesia de la Coronación de Vitoria.
08. Vista interior de la iglesia de la Coronación de
Vitoria. Muro dinámico y estático. Entradas de luz.
09. Esquema de la evolución del muro dinámico y estático.
10. Vista interior de la Iglesia de Santa Ana, Madrid
11. Vista interior de la iglesia de los Dominicos de
Alcobendas, Madrid. Entradas de luz.
12. Vista interior de la iglesia de La Asunción, Madrid
13. Vista interior de la iglesia de La Asunción, Madrid
13. Vista interior de la iglesia de La Asunción, Madrid
BIBLIOGRAFÍA
ARQUES SOLER, F: Miguel
Fisac, Colección Arquitecturas-Estudio nº 1, Ediciones Pronaos, 1996
CRUZ MORALES, M: La
arquitectura de Miguel Fisac, editado por el colegio de arquitectos de
Ciudad Real, 1979
CÁNOVAS, A: Miguel
Fisac, Medalla de Oro de la Arquitectura 1994, editado por el Ministerio de
Fomento y el Consejo Superior de los Colegios de Arquitectos de España, 1997
AV Monografías 101. Miguel
Fisac, editor Publisher, 2004
Javier
Pérez, javiernet04@gmail.com













No hay comentarios:
Publicar un comentario